3-GEN HDB APARTMENT

638A SENJA CLOSE, SINGAPORE

This minimalistic apartment at Senja brings you a simple and clutter-free design that will fit many individuals who prefer to keep things simple to focus on the more important things in life.

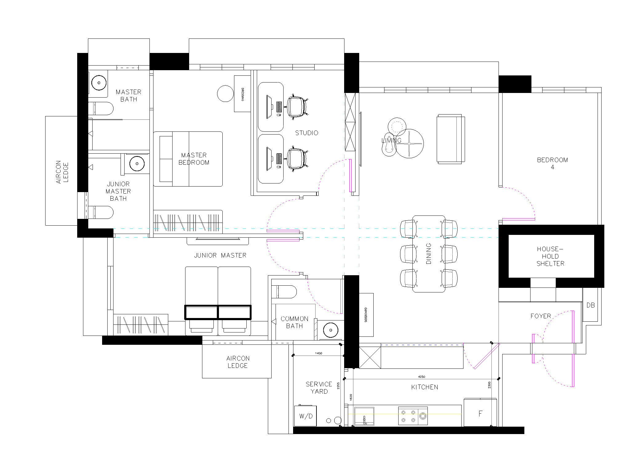
A 3-Gen flat is designed to accommodate more residents than a typical HDB unit, so it requires careful planning of living space to ensure harmonious living among the occupants.

The living and dining area is the main gathering place in the apartment and also serves as a boundary between the bedrooms to provide more privacy.

The foyer features a hidden shoe cabinet inspired by Japanese interior design, creating a smooth transition into the living room.

 

The kitchen is separated by a glass partition with a wooden frame and a custom wooden door, creating a cohesive design throughout the home.

A metal bar is installed on the backsplash to allow easy access to daily use kitchen tools without creating too much of a visual mess.

The kitchen combines Japanese wood tones and rectangular mosaic tiles to evoke a traditional Japanese interior design aesthetic.

A simple, single-toned color palette paired with textured tiles adds uniqueness to the bathroom's otherwise simple design.

Small rectangle tiles are chosen here, divided by a newly constructed wall, to create an interesting play of design for the common bathroom.

 

A uniquely chosen bedhead lamp from Sol Luminaire is enough to make the master bedroom space standout.

Lightly colored tiles paired with black framed glass and mirror to create a striking visual.

The master bathroom follows the same design language as the common bathroom, using a combination of small mosaic tiles and larger plain tiles. A flat-framed shower screen and mirror add interest to the otherwise simple design, creating consistency throughout the flat.

In the junior master bedroom, wooden furniture is selected to match the wardrobe's colors. The wardrobe features rounded handles, creating a cute and cozy atmosphere.

Previous
Previous

747C BEDOK RESERVOIR CRESCENT

Next
Next

13 SILAT AVENUE